Обяви 0 За нас Контакти
Продава 3-СТАЕН
град Пловдив, Христо Смирненски
151 890 €
297 071.02 лв.

(1 381 €, 2 701.00 лв./m2)
Не се начислява ДДС
Коригирана в 15:26 на 29 април, 2026 год.
Обявата е посетена 419 пъти.
Площ:
110 m2
Строителство:
Тухла, Ще бъде въведен в експлоатация 2026 г.

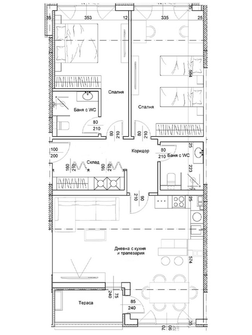
Описание на имота:


Оферта 82551Б БЕЗ ХОНОРАР ОТ КУПУВАЧА! Предлагаме Ви тристаен апартамент, в новострояща се модерна сграда в кв.Смирненски. Има възможност да се закупят паркоместа, гаражи. Различните етажи и изложения имат лека корекция на цената. Жилището се намира на трети етаж и е с площ от 110 кв.м. Имотът има следното разпределение:
- антре
- хол с кухненски бокс
- две непреходни спални
- две бани с тоалетни
- склад
- тераса

Апартаментът се продава в степен на завършеност БДС:
- под циментова замазка
- стени гипсова мазилка
- тавани гипсова мазилка
- външна блиндирана врата
- дограма - ПВЦ
- изградени до точка ОВ
- електрическа и ВИК инсталации
Изпълнението на сградата е по традиционен монолитен начин - със стоманобетонови колони, плочи и греди. Фасадните стени са трислойни - вътрешен слой от тухлена зидария, външен и среден. Фасадата е с характерен архитектурен образ. Сградата ще бъде завършена с луксозни общи части и хидравличен асансьор.
В близост до сградата има автобусна спирка и градски транспорт. Районът се характеризира още с наличие на детска градина, училище. В допълнение, за комфорт и развлечение на ваше разположение наблизо ще намерите ресторанти, супермаркети и др.
Можем да организираме оглед на имота в удобно за вас време. Свържете се с нас и кажете кога бихте искали да направите оглед. След огледа имота може да бъде резервиран със заплащане на депозит, след което се прекратяват огледи с други купувачи и започва подготовка на документите за сключване на предварителен и окончателен договор. Услугите, които предлага нашата фирма са - Безплатни юридически консултации, съдействие при одобрение на ипотечен, потребителски и всякакъв друг кредит, при възможно най-добри условия за клиента. Работим с всички банки. Безплатни огледи. За Контакти: Юлия Казакова 0899152288
Особености
Тухла
Асансьор
С гараж
За контакт:
0899152288

Този имот се предлага само на частни лица
Брокер:
Юлия Казакова
032622227, 0899152288
Още оферти от брокера: Продава | Дава под наем | Купува | Наема
Агенция:
ЛИДЕРА
032/622 227; 0898433193; 0882/646 888
ЛИДЕРА logo
Медал за прослужено време
В imot.bg от 2004 г.
lidera.imot.bg
Адрес:
област Пловдив, гр. Пловдив, ул. 'Гладстон' 56, ет.2 https:/imotilidera.com/
http://imotilidera.com
ИЗПРАТИ ЗАПИТВАНЕ
ИЗПРАТИ ЗАПИТВАНЕТО

Продава 3-СТАЕН
град Пловдив, Христо Смирненски
Обява: 1c174064670635524

151 890 €
297 071.02 лв.
(1 381 €, 2 701.00 лв./m2)

Не се начислява ДДС
ЗАПАЗИ ОБЯВАТА

Местоположение: град Пловдив, Христо Смирненски

Допълнителни данни за имотите в района и сравнение с други райони

Покажи

Период

и 5 месеца

* Средните цени са определени чрез медианна стойност